
- Novostavba 3izb bytu
- trojizbový byt
- 2xbalkón
Ulica: | sídlisko Jána Dalloša |
---|---|
Obec: | Sládkovičovo |
Okres: | Galanta |
Kraj: | Trnavský kraj |
Druh: | Byty |
Typ: | Predaj |
Typ bytu: | 4-izbový byt |
Iné: |
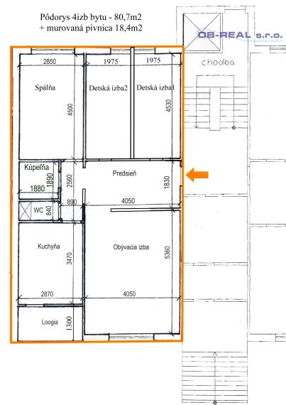
Ponúkame na predaj rekonštruovaný čiastočne zariadený 4izb byt 79,4m2 + murovaná pivnica 18,36m2 na 2 z 5poschodí s výťahom na sídl. J. Dalloša v Sládkovičove.
Tento celý deň presvetlený, priestranný byt s veľkým úložným priestorom je predajom ihneď k dispozícii.
Za bytovkou je oplotené detské ihrisko.
K bytu je možné kúpiť aj novú garáž bezprostredne za bytovým domom.
Výmera podlahovej plochy. SPOLU: 99,04m2 > Byt 77,06m2, loggia 3,64m2, pivnica 18,34m2.
Orientácia bytu: 3x izba severozápad, obývačka a loggia z kuchyne juhovýchod.
Miestnosti: Priestranná chodba, 2x detská izba, spálňa, obývačka, kúpeľňa, WC, kuchyňa, loggia a v suteréne veľká murovaná pivnica.
Byt má bezpečnostné vstupné dere Scherlock, drevené interiérové dvere a zárubne, plastové okná a plastové dvere na loggiu. Podlahy keramická dlažba a v izbách plávajúce.
Zariadenie: V kuchni kuchynská linka so postrebičmi (umývačka riadu, kombinovaný šporák, digestor, mikrovlnka), kuchynský stôl a stoličky. V ostatných miestnostiach (viď aktuálne foto) môže zostať nábytok dohodou.
Poplatky cca 200,-€/mesačne.
Sládkovičovo 925 21 (GA). Počet obyvateľov 5386 (31.12.2024 ) 120 m/m. Prvá zmienka 1252. Občianska vybavenosť: MÚ, pošta, polícia, kultúrny dom, škôlky, školy (základné, stredná, vysoká), zdravotné stredisko, lekárne, Hotel, supermarket Jednota, TESCO, BILLA, obchody, služby, futbalový štadión, termálne kúpalisko Vincov les s celoročnou prevádzkou, jazero, potoky a lesy.
Autobusová a železničná stanica .min peši.
GA 6km, DS 30km, BA 43km, TT 27km, SC 19km, NR 43km
Obhliadky absolvujete s profesionálnym maklérom s 25-ročnou skúsenosťou. Vďaka nášmu komplexnému servisu je pre nás samozrejmosťou zabezpečiť úver na financovanie kúpy nehnuteľnosti, zmluvy, podklady pre znalecký posudok, obeháme kataster, zabezpečíme množstvo ďalších drobností, pre ktoré si nebudete musieť brať dovolenku v práci a na záver sme prítomný aj pri protokolárnom odovzdaní nehnuteľnosti, kedy zabezpečíme prepis dodávateľa energií na nového vlastníka.