Používame cookies

Súbory cookie a ďalšie technológie sledovania používame na zlepšenie vášho zážitku z prehliadania našich webových stránok, na to, aby sme vám zobrazovali prispôsobený obsah a cielené reklamy, na analýzu návštevnosti našich webových stránok a na pochopenie toho, odkiaľ naši návštevníci prichádzajú. Viac info

 

Predaj novostavby 4izb RD 118m2 v štandarde s kuch. linkou, pozemok 719m2

Obec: Sládkovičovo
Okres: Galanta
Kraj: Trnavský kraj
Druh: Domy
Typ: Predaj
Typ domu: Rodinný dom
Iné:
245 000 €

Popis nehnuteľnosti

Ponúkame na predaj novostavbu 4izb rodinného domu v štandarde, na oplotenom pozemku, na Železničnej ulici v Sládkovičove.

Rodinný dom je skolaudovaný a má pridelené súpisné číslo. 

Je postavený precízne z kvalitných materiálov. Disponuje komplexným, nadštandardným technickým vybavením s modernými technológiami. 

Máme k dispozícii aktulny znalecký posudok. 

Predajom je ihneď  dispozícii. 

Výstavba 2025

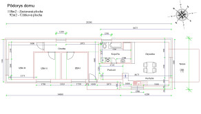
Zastavaná plocha : 118 m2

Úžitková plocha : 92 m2

Pozemok 719 m2  - šírka 9m, dĺžka 80m

Orientácia: vstup do domu juhozápad; Terasa juhovýchod.

 

Situácia: Rodinný dom je vsunutý na pozemok tak, že pred ním je dostatok miesta na  parkovanie dvoma os. autami. Za domom je spevnená plocha pre terasu a záhrada v dĺžke 46m, čo vytvára dostatočný priestor pre zónu relaxu a aj záhradku.  

 

Dispozičné riešenie: Vstup do domu je z boku z juhozápadnej strany do predsiene z ktorej je prístup do izbovej (3-izby) a dennej časti domu s kúpeľňou, kuchyňou a obývačkou s východom na terasu.

Stavba:

Dom je postavený na železobetónových základoch s hydroizoláciou. Obvodové múry sú z tehál hr.300mm so zateplením hr.200 mm. Omietky hladké sádrové. 

Podlahy tepelne odizolované 100mm EPS, na tom betónový poter. V predsieni a v kúpeľni je keramická dlažba inde plávajúce podlahy.

Plastové okná, vstupné a terasové dvere s trojsklom, z vonkajšej strany vo farbe antracit.  Interiérové dvere a zárubne.

Strecha je pultová, drevený väzníkový krov, falcovaný plech, odkvapové ríny a bleskozvod. Strop je odľahčený, sádrokartón s fúkanou izoláciou fúkanou  hr. 43cm. 

Táto konštrukcia celkovo zaisťuje vynikajúce tepelnoizolačné vlastnosti, minimalizuje tepelné mosty a znižuje náklady na vykurovanie.

Inžinierske siete:

Elektrina 230/400V/25A, osadené zásuvky a vypínače, medené rozvody.

Kúrenie kvalitné, podlahové elektrické, v každej miestnosti je termostat.

2x klimatizácia – možnosť kúrenia v zime a v lete chladenia. 

Voda mestská, odpad do mestskej kanalizácie. Ohrev vody elektrickým bojlerom. 

Za terasou vŕtaná studňa.    

Predpríprava pre solárne panely, elektrické exteriérové rolety. Káblové rozvody pre alarm, kamerový systém, internetový rozvod.

 

Zariadenie:

V kúpeľni sa nachádza vaňa, sprcha, umývadlo, WC geberit, elektrický bojler a priestor pre AP s prívodom a odpadom vody.   

V kuchyni je kuchynská linka so spotrebičmi – Sklokeramický varný panel, digestor,  umývačka riadu a drez. Pod varným panelom je priestor pre el. rúru.    

 

Energeticky certifikát je A1. 

 

Okolo domu sú spevnené plochy makadámom, ako podklad pre parkovisko, chodník a terasu. Pozemok je okrem uličnej čiary oplotený bariérovým plotom.  

 

 

Sládkovičovo 925 21 (GA). Počet obyvateľov 5386 (31.12.2024 ) 120 m/m. Prvá zmienka 1252. Občianska vybavenosť: MÚ, pošta, polícia, kultúrny dom, škôlky, školy (základné, stredná, vysoká), zdravotné stredisko, lekárne, Hotel, supermarket Jednota, TESCO, BILLA, obchody, služby, futbalový štadión, termálne kúpalisko Vincov les s celoročnou prevádzkou, jazero, potoky a lesy.

Autobusová a železničná stanica.

GA 6km, DS 30km, BA 43km, TT 27km, SC 19km, NR 43km 

Obhliadky absolvujete s profesionálnym maklérom s 25-ročnou skúsenosťou. Vďaka nášmu komplexnému servisu je pre nás samozrejmosťou zabezpečiť úver na financovanie kúpy nehnuteľnosti, zmluvy, podklady pre znalecký posudok, obeháme kataster, zabezpečíme množstvo ďalších drobností, pre ktoré si nebudete musieť brať dovolenku v práci a na záver sme prítomný aj pri protokolárnom odovzdaní nehnuteľnosti, kedy zabezpečíme prepis dodávateľa energií na nového vlastníka.

     

 

  

 

Vlastnosti

Status:
aktívne
Vlastníctvo:
osobné
Plocha pozemku:
719 m2
Typ zeme:
rovina
Teritórium:
Intravilán
Šírka pozemku:
9 m
Dĺžka pozemku:
80 m
Úžitková plocha:
92 m2
Zastavaná plocha:
118 m2
Podlahová plocha:
92 m2
Stav:
novostavba
Počet izieb:
4
Energetický certifikát:
A
Energetická náročnosť budovy:
Nízkoenergetický
Typ budovy:
tehla
Typ výbavy:
čiastočne vybavený
Terasa:
áno
Rok výstavby:
2025
Rok kolaudácie:
2026
Celková plocha:
118 m2
Počet terás:
1
Počet vonkajších parkovacích miest:
2
Orientácia:
juhozápad
Vykurovanie - podlahové:
áno
Internet:
áno
Optická sieť:
áno

Pozrieť na mape

Maklér

Oto Bondor

Oto Bondor

maklér

  • Magyar
  • Slovensky

Radi Vám poradíme

Podobné nehnuteľnosti