
- Kompletná rekonštrukcia
- top
Obec: | Sládkovičovo |
---|---|
Okres: | Galanta |
Kraj: | Trnavský kraj |
Druh: | Domy |
Typ: | Predaj |
Typ domu: | Rodinný dom |
Iné: |
Ponúkame na predaj novostavbu prízemného 4izb rodinného holodomu v dobrej lokalite na vedľajšej jednosmernej ulici mesta Sládkovičovo. Dokončenie cca 10-11/2025. Možnosť dokončenia do štandardu.
Výstavba leto/jeseň 2025
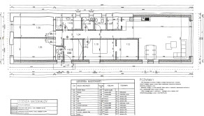
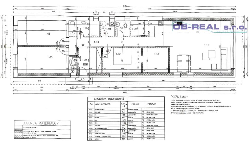
Dom zastavaná plocha 169m2. Úžitková plocha 141m2 (bez terasy)
Pozemok: 446m2; dĺžka 40m, šírka 12m
Orientácia: Čelo domu juhovýchod
Parkovacie miesta budú vytvorené na vlastnom pozemku pred domom.
Fotografie vytvorené ako vizualizácia
Dispozícia: Vstup do domu je z bočnej strany, zo závetria do predsiene odkiaľ je voľný prechod na chodbu, z ktorej je vstup do všetkých ostatných miestností: 2x WC, kúpeľňa, technická miestnosť, špajza, 2x detská izba, spálňa rodičov s nadväzujúcou šatníkovou miestnosťou, kuchyňa voľne prepojená s jedálňou a obývačkou. Z obývačky je vstup na terasu.
Stavba: Dom má železobetónové základy s hydroizoláciou. Obvodové múry sú murované z tehál hr. 30cm + tepelná izolácia hr. 20cm. Podlahy tepelne odizolované. Strecha je pultová, drevený väzníkový krov, s izoláciou Fatrafol. Bleskozvod. Strop sádrokartón, s izoláciou fúkanou penou. Podlahy betónový poter. Omietky hladké sádrové. Okná, vstupné a terasové dvere plastové s trojsklom vo farbe antracit. Terasové zdvižno-posuvné dvere HS portál.
Rozvody inžinierskych sietí:
Elektrina 230V/400V/32A, medené rozvody, ističe, zásuvky, vypínače.
Kúrenie zabezpečené tepelným čerpadlom, trubkové teplovodné rozvody, podlahové kúrenie. Predpríprava na solárne panely.
Voda mestská, odpad do mestskej kanalizácie. Ohrev vody elektrickým bojlerom.
Predpríprava: Káblové rozvody pre Alarm, predokenné rolety a klimatizáciu.
Dom sa predáva v stave holodomu.
Po dohode so staviteľom je dom možné dokončiť do štandardu.
Obhliadky absolvujete s profesionálnym maklérom s 25-ročnou skúsenosťou. Vďaka nášmu komplexnému servisu je pre nás samozrejmosťou zabezpečiť úver na financovanie kúpy nehnuteľnosti, zmluvy, podklady pre znalecký posudok, obeháme kataster, zabezpečíme množstvo ďalších drobností, pre ktoré si nebudete musieť brať dovolenku v práci a na záver sme prítomní aj pri protokolárnom odovzdaní nehnuteľnosti, kedy zabezpečíme prepis dodávateľa energií na nového vlastníka.