
- Novostavba
- Tichá lokalita
- Terasa
Ulica: | Fučíkova |
---|---|
Obec: | Sládkovičovo |
Okres: | Galanta |
Kraj: | Trnavský kraj |
Druh: | Byty |
Typ: | Predaj |
Typ bytu: | 3-izbový byt |
Iné: |
Ponúkame na predaj moderné 3izb holobyty s balkónom a lodžiou, v trojposchodovom zateplenom bytovom dome s výťahom, v novovybudovanej tichej lokalite Marína, v centre mesta Sládkovičovo.
Na každom poschodí sú dva 3izb byty.
- Pri bytovom dome je k bytom na predaj 25 parkovacích miest. Cena jedného je 5.000,-€.
- Možnosť prenájmu murovanej garáže s elektronickou bránou Hörman veľa bytového domu.
- Predpokladaná kolaudácia jar 2025.
- V okolí bytovky spevnené plochy zámkovou dlažbou, parkovacie miesta, zeleň.
Výmera podlahovej plochy a cena:
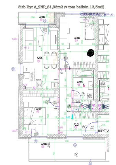
3izb Byt A – úžitková plocha 82m2 a 70m2 (bez lodžie a balkóna a 65,06m2)
3izb Byt D – úžitková plocha 70,16m2 (bez lodžie a balkóna a 65,06m2)
Orientácia:
Juhozápad - Obývačka a spálňa
Severovýchod - Čelo bytového domu
Dispozícia bytov:
Do bytov je prístup zo spoločnej chodby s výťahom a schodišťom. V bytoch je samostatný vstup do každej miestnosti. Byt má dve spálne, kuchyňu voľne prepojenú s obývačkou so vstupom na lodžiu. Druhá lodžia je so vstupom zo spálne. Každý byt má samostatné WC a kúpeľňu.
Inžinierske siete:
- Samostatné meranie elektriny a vody.
- Elektrina 230/400V/25A
- Elektrické podlahové kúrenie s termostatom v každej miestnosti.
- Mestská voda, ohrev vody elektrickým bojlerom, odpad do mestskej kanalizácie.
- Drenážne jamy na odvod dažďovej vody zo strechy a vsakovače z parkovísk.
- Príprava na klímu.
- Príprava na lokálnu rekuperáciu z každej izby.
- Prípojka internetu a KábT
Stavba:
- Na spoločných priestoroch podlahy a schodište s keramickou dlažbou.
- Holobyty vymaľované na bielo.
- Osadené elektrické zásuvky, vypínače a termostaty podlahového kúrenia.
- Po dohode so staviteľom možnosť dokončenia bytu do štandardu.
- Okná a dvere na balkón či lodžiu sú plastové s izolačným 3-sklom.
- Obvodové múry hr.30cm (železobetón a tehla)+ izolácia 16cm
- Priečky tehlové s vápenno-cementovou omietkou.
- Podlahy majú tepelnú a protikročajovú izoláciu (Hr. 8cm).
- Strecha železobetónová, spádová, s tepelnou izoláciou Hr. 40cm, Na povrchu izolačná fólia Fatrafol.
- Bleskozvod
- Výťah
Výhody:
- Centrum mesta
- Kvalitná novostavba
- Možnosť bývania už na jar 2025
- Len štyri byty na jednom poschodí
- Priestranný výťah
- Lodžia v každom byte
- Vlastné parkovanie
Sládkovičovo 925 21 (GA). 5741 obyvateľov (2021).
Výborná občianska vybavenosť: MÚ, pošta, polícia, kultúrny dom, škôlky, školy (základné, stredná, vysoká), zdravotné stredisko, lekárne, Hotel, supermarket Jednota, TESCO, BILLA, obchody, služby, futbalový štadión, termálne kúpalisko Vincov les s celoročnou prevádzkou.
Autobusová a železničná stanica.
GA 6km, DS 30km, BA 43km, TT 27km, SC 19km, NR 43km
OB-REAL, s.r.o.: Bezplatne sprostredkujeme poistenie bytu a úver na financovanie kúpy nehnuteľnosti našim úverovým špecialistom. Zabezpečíme znalecký posudok. Poskytujeme kompletný, odborný servis počas prevodu vlastníctva nehnuteľnosti až po jej prevzatie a prepis energií.
Mgr. Ladislav Bondor - 0903219369
konateľ